Boligvelger
Dokumenter
Kontakt
Meld interesse
A1-3
Solgt
Hus nr.
A1-3
BRA-i
BRA-e
BRA
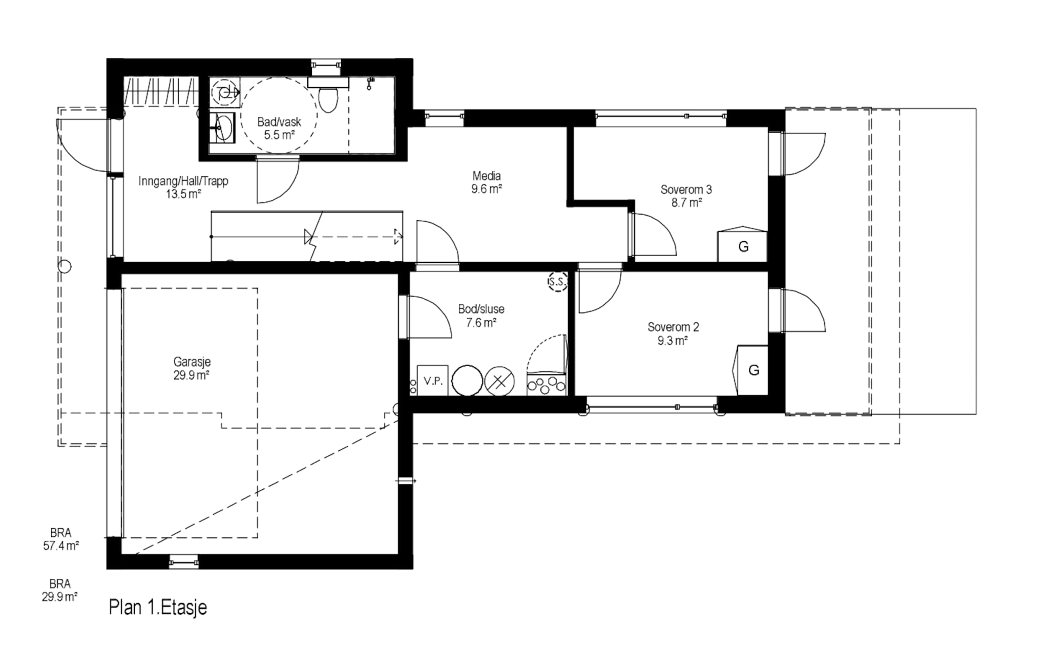
121
Soverom
4
Uteplass m²
P-plass
Pris
Pris inkl. omk.
5 132 740
Status
Solgt
Dokumenter
Prospekt Granmolunden
Prisliste Granmolunden
Meld interesse
Fyll inn navn
Fyll inn telefonnummer
Fyll inn e-post
Jeg ønsker å bli kontaktet i samtykke med denne
personvernerklæringen
Send
Kontakt megler
Malin Pedersen
Eiendomsmegler
91 16 48 06
malin.pedersen@em1.no
Silje Solem
Eiendomsmeglerfullmektig
454 59 896
silje.solem@em1.no
Ane Nes
Eiendomsmegler
+47 915 88 153
ane.nes@em1.no
Powered by Plyo
Tilbake til Boligvelger